The Discovery II Building
Office Space, North Bonneville
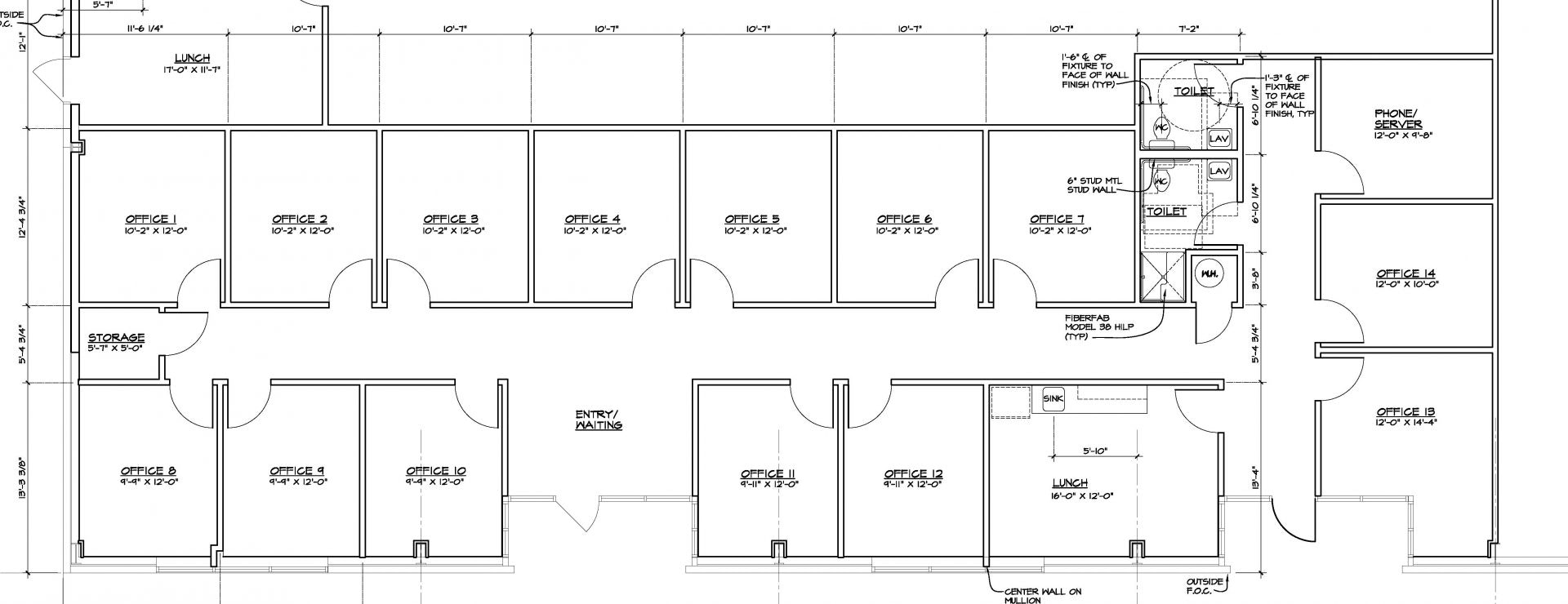
One of our newest buildings, this property features 3,150 square feet of office space. There are 7 co-mingled offices available, a large break room, phone/server room, 2 restrooms (one with a fully accessible shower), supply closets, and 2 entrances. Many of the offices feature floor-to-ceiling windows There is also a parking lot with plenty of spaces for clients or customers.
Currently, we have three offices available, approximately 120 sq. ft each. Contact us for a showing!



















